p r o j e c t s  1 9 8 5 - 1 9 9 5
a p a r t m e n t    b u i l d i n g    i n    A t h e n s
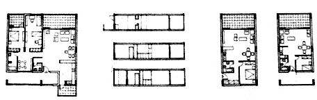
The two-storey houses preserve maximum autonomy. Each house has an interior  and an exterior  living space, and remains distinguishable in the overall building structure.