collaborators: Maria Panagopoulou, Sotirios Kotsopoulos

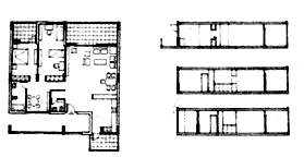
An appartment building including 50 houses, shops and a public space for activities. The buidling occupies the lot of an old factory. It is located in an industrial suburb of Athens, which gradually was transformed into a residential area.
p r o j e c t s  1 9 8 5 - 1 9 9 5
a p a r t m e n t    b u i l d i n g    i n    A t h e n s